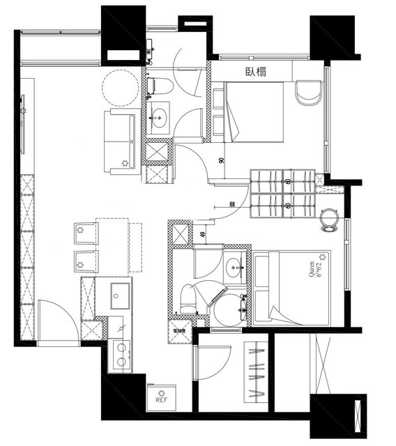
先前買的預售屋兩房(室內約19坪),最近開始在做客變了,想問雙套房格局實(好)用嗎? 還是將一衛浴改成公用衛浴好? 註: 1.不會頻繁有客人常來拜訪,偶爾友人來訪而已。 2.目前夫妻二人同住,備孕中,無寵。 https://i.imgur.com/ZHOywnW.jpeg
-- Sent from nPTT on my iPhone 15 Pro Max -- ※ 發信站: 批踢踢實業坊(pttbestweb.org.tw), 來自: 114.46.229.24 (臺灣) ※ 文章網址: https://pttbestweb.org.tw/home-sale/M.1733057909.A.05B
xc2v: 一間套房就好 除非以後要分租 12/01 21:41
kumaliu1988: 一套。朋友偶爾來也有機會用到廁所 除非你不介意房 12/01 21:47
kumaliu1988: 間讓他進去 12/01 21:47
jessicaabc98: 實用丫 12/01 21:52
drimp: 一間套房 一間公用比較好 這個問題很簡單 大多數建商都是一 12/01 22:02
drimp: 公用一套房 明顯就是多數人的需求是這樣 12/01 22:02
Keade0325: 覺得不錯 12/01 23:29
Harlequin727: 我可以接受 如果很不常外人來坐客 12/01 23:30
krit1009: 陽台呢 12/02 00:56
daniel6412: 這動線免強可以 12/02 01:46
tskier: 每次上廁所都要進房間,看你會不會覺得煩 12/02 08:43