作者ceca (生活藝術大師 N)
標題Re: [閒聊] 自立路有可能打通跨過愛河嗎?
時間2024-06-26 09:01:56
※ 引述《jackdawliu (CucKoo)》之銘言:
: 有啦,別忘了副市長曾經在都發局當過局長,高雄發展潛力特性他可清楚了
: 只是得等自立路那一塊整合起來
: 也就是劉公館ktv旁那一帶的鐵皮廢料廠
: 現在的活動中心未來是安宜長照中心,宏蒲都已經獵地
: 另外光之塔已經要變客家園區,所以自立路不會直接通,會閃過從文物館那一側跨,接到
: 對岸那一條路大就是了
: 但紫線通過,農21突然醒過來,代表光陽那一塊也差不多了
: ceca 怎麼看?
: ※ 引述《qooisgood (不告訴你)》之銘言:
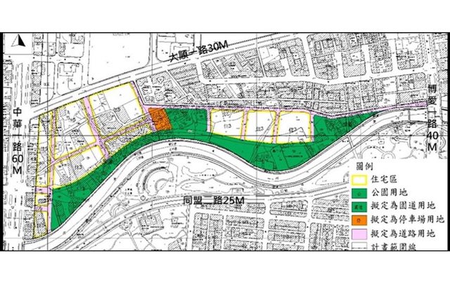
: : https://i.imgur.com/DkcuwDZ.jpeg
: : https://i.imgur.com/fNmXtEl.jpeg
: : https://i.imgur.com/ElXPSL4.jpeg
: : 今天都發局發布農21的重畫公告圖
: : 結果自立路並沒有打通跨過愛河
: : 現在高雄南北向的主要幹道中華,博愛,自由,民族
: : 這幾條路尖峰時刻天天塞爆
: : 新蓋一條橋跨過愛河不是很好嗎?
: : 為什麼不蓋啊
基本上感覺不會直接接到直路.
應該照慣例會讓直行車轉兩個彎才可以繼續直行.
因為要穿過農16.
穿過高級住宅區,照慣例就是要你轉好幾個彎.
例如從忠言路到美術東五路你看轉幾個彎.
這樣避免閒雜車等進入高級住宅區....
而如果自立路不直接接上裕誠龍聖龍德.
那要搭橋就很單純,過橋後直直走到橫路接上去變丁字路口.
這是我覺得如果自立路有搭橋的話最可能的型態.
不過重點在於自立路有沒有要做一條橋.
因為最近市府給我感覺就是,對於馬路交通並不是那麼強烈的在疏通...=.=
若要富,先修路.
所以我對大公路非常注重.
一個塞車塞到爆的地方,除非你是因為人潮過多產生.
不然這個地方的發展就是會因為交通而被侷限.
最典型就是旗津.
旗津的發展為啥到目前規模就開始有點停滯.
很難把老街的能量牽引到風車公園.
(看看淡水八里)
阿就是因為被交通侷限了發展上限.
不要跟我喇一堆你可以怎樣怎樣達成交通目的.
事實就是,交通壓制到發展....人家才沒空管你那麼複雜的交通方式勒.
他第一直覺的交通方式發現有困擾,他就不去了...(困擾包含感覺你的交通方式很麻煩)
誰有那麼多大腦和時間和精神去配合你的麻煩的規劃!!!!
那同樣回來這一塊.
自立路陸橋不蓋你說會怎樣?
也不會怎樣,就中華和博愛的車子更塞一些.
但是就這邊不怎樣那邊不怎樣.
你全部加起來就是市區的市民交通時間被迫提高.
那提高了,大家的人生花更多在塞在馬路上.
能創造什麼經濟效應嗎?
喔不,你只有多買更多石油讓石油國發大財而已...順便多排放一些一氧化碳和粉塵.
但如果你把交通弄好,這樣大家每個人都多省一些時間.
自然可能可以多買一杯飲料,下班多去散步一下,多陪小孩一下.
甚至外送的可以多送一單,做工的可以多趕工一下子.
這就是實打實的創造了更多的都市價值.
因此為啥我這麼賭爛梅花燈.
你他媽的在拖累都市發展和成長好嗎.
還製造汙染!!
還是你以為這樣市民就會妥協去搭捷運和公車?
阿你說交通好了湧入更多人然後交通還是塞阿.
恩...一個都市湧入更多人才造成的塞代表甚麼.
你自己知道.
所以更好更疏通的交通.
是一個都市競爭力的根源之一.
而且必須是全部市民最常使用的交通方式的提升.
這樣才會對這個都市有最大效應解.
而自立陸橋有和沒有,對這一區有多少差別.
我相信很多人不用說就很清楚.
就算自立路橋無法直接串連裕誠龍德龍聖.
也可以非常明顯的疏通很多車流.
就像自由路打通類似.
但是目前都市計畫還沒看到這個規劃.
所以....反正只能看政府要怎麼想了.
至於說重劃.
重劃的考慮會更遠一點.
一般來講一個都市(或是大都市的某一大部分)通常會維持一個精華重劃區.
台中那種狂開重劃區東西南北全都是重劃區的型態比較少.
而目前北高雄的精華重劃區是中都.
下一個接力的目前看起來應該是光陽總廠那邊...看起來拉...畢竟還沒正式通過規劃.
那西三民工業地這一區基本上會排隊排在更後面很正常.
我不太認為市府的慣性會同時把東西三民工業地都重劃,一次釋放出這麼大片的重劃區.
不過農21如果撇除地主的意願影響的話.
他反而應該很早就要重畫好了.
主要是它是農16的延伸,外加他的住宅用地其實面積沒多大.
所以他對市場上的建地供給量很有限.
而且他是跟農16有直接性掛在一起,比中都之於美術館更直接.
但是農21進度停滯的原因各位也知道,扯到地主就是無解.
台中高爾夫球場,龍潭的農地...連台積電都無法搞定地主問題,更何況單純的住宅區重劃.
所以農21基本上就是等地主共識,只要地主妥協願意照規矩走,我相信它就會重劃.
(反而鼓山台泥更像在等九如陸橋完工...XD..那個就擺在那邊都不動不管不理的狀態)
當然我也不排除市府如果有意願長期維持美術館和農16蛋黃區的地位.
所以做一個手段..
就是東西三民重劃區,拆很多段重劃.
就像東三民重劃區.你看99期,107期....
而如果他東邊給你重劃一小部分,西邊給你重劃一小部分.
這種型態會造成甚麼?
這種型態會造成這兩塊重劃區都因為發展的時候釋出的腹地太小.
所以無法成為一個可以跟美術館和農16競爭王者地位的新興重劃區.
那就會變成它們注定只能成為小弟...
(中都跟西三民工業地被拆開,就造成今天中都成為美術館的延伸)
而農16和美術館可以更長期的維持在霸主地位.
雖然身為美術館的屋主,但如果站在都市發展的立場上,我不是很贊同這種作法.
你沒有更新的王者來替換掉舊的.
都市的發展在時代的進化上就會遲緩..很多新的完整的規劃就無法快速打造跟上時代.
但是當然如果以美術館屋主來講...
這樣做當然好啊.....XD....
你們都知道,當我看到美術館王者地位開始受到挑戰的時候.
就會立刻把美術館給賣掉..以免吃到王者退位的時候要吐出王者特權的那一段嚴重利空.
阿你把本來強大威脅的敵人重劃區,拆成很多部分分段釋出,讓他成為小弟.
這樣美術館農16就爽爽的,久久推一案,價格踩他頭頂往上跳...
你看美術館是不是久久推一案,價格踩著中都往上跳....
中都則狂推案來拉抬價格基底.
這樣,既可以節省美術館的空地避免快速開發把燃料都燒光.
又有小弟在前面衝刺,幫忙哄抬價格基底...
不過目前東三民區99期,107期畢竟都還沒有強勢推案.土地都還在養.
如果市府繼續快速的把整塊工業地都重劃起來.
到時候養的土地再一次推案發展.
這邊還是可以很有競爭力的...
當然後續還是要看下去才知道.
畢竟我更早是以為市府會一次性把整個工業地重劃.
而不是拆很多部分慢慢來.
所以結論就是.
農21應該還是地主的問題.
地主搞定我相信重劃就會快速推行.
而且建商也會大力搶地之後在上面快速推案....
西三民工業地重劃可能還會繼續等等.
東三民工業地應該會繼續維持一塊一塊地重畫起來.
東三民工業地只要持續重劃,建商就算弄到土地,應該也是先養著而不會急著開發.
當然如果轉彎型態就會變成.
東西三民工業地都被拆成很多部分一部分一部分的重劃.
這樣建商就不會長期養地,而是順著推案.
西三民工業地這邊重劃的話推案就是在跟在中都後面,成為中都的延伸.
東三民工業地則是順著河堤推案過來,等同河堤社區的重生概念.
這種就是另一種發展.
而到底哪一種發展模式,你就看市府下兩塊重劃是推在哪.
如果之後連續重劃都在東三民工業地.
那就應該是上面的走勢.
如果後面兩個重劃區有一塊落在西三民工業地.
這就是下面的走勢.
政府是莊家他說得算...
市政府一直都是不動產的莊家兼最大玩家.
(他是最大地主,並且不動產也是他"最重要"的收入...)
市府就是裁判兼球員的存在....
但我認為.
無論市區的重劃,菜色政府想要怎樣炒.
馬路交通還是要優先搞好.
馬路交通比你到底蛋黃區王者在哪裡,價格怎樣炒重要太多了.
若要富,先修路.
路都修不好,你還想發展個屁?
--
※ 發信站: 批踢踢實業坊(pttbestweb.org.tw), 來自: 114.35.187.97 (臺灣)
※ 文章網址: https://pttbestweb.org.tw/Kaohsiung/M.1719363718.A.E2A
推 wingthink : 旗津再過幾年...搞不好海平面上升就跟中國貴州廣西 06/26 09:07
→ wingthink : 那邊一樣咕嚕咕嚕了... 06/26 09:07
推 sportingman : C大 怎麼看科工館北面那個重劃區塊? 一直 重劃 06/26 09:15
→ sportingman : 一直有重劃消息 但是好像沒動作 06/26 09:16
推 jinny891 : 推c大! 06/26 09:29
推 scott29 : 好奇王者特權有那些 06/26 09:30
推 qooisgood : 真的 自立路不打通真的是很有事...... 06/26 09:53
→ MVPGGYY : 靈骨塔那邊有很多空地嗎?就一些小塊的,但其他都是 06/26 10:01
→ MVPGGYY : 透天,應該沒人想整合 06/26 10:01
推 qooisgood : 另外 西三民工業區應該不久會啟動變更 06/26 10:02
→ tkucuh : 我住自立路上,不打通很奇怪嗎?我是覺得還好... 06/26 10:02
→ qooisgood : 已經有人在收這邊的工業用地金額還不低 06/26 10:03
→ qooisgood : 感覺就是已經有人收到內線先來卡位 06/26 10:03
→ MVPGGYY : 那條通去建興路的小小路以前有陣子還擋起來,後來才 06/26 10:03
→ MVPGGYY : 又打開 06/26 10:03
推 overingx : 先改成梅花燈才有高雄價值 06/26 10:37
推 Jackey52013 : 市府怎麼可能重視交通暢通度?應該是恨不得把所有大 06/26 10:41
→ Jackey52013 : 路改成梅花燈吧,既可以讓交通工具速度降低,又可以 06/26 10:41
→ Jackey52013 : 製造高雄超繁華的假象,一舉兩得 06/26 10:41
推 beastlcc12 : 被害妄想症逆 06/26 11:19
推 cle031 : 討厭梅花燈,推ceca大 06/26 12:21
推 york1987 : 現在藍白過半,這些建設都不用想了 06/26 12:32
推 eupa1973 : 義永寺那邊應該是比農21難搞,樹德那一區塊路真是太 06/26 13:01
→ eupa1973 : 不規律了,小巷子一堆,彎來彎去的,當初不知那裏怎 06/26 13:01
→ eupa1973 : 重劃的 06/26 13:01
推 qooisgood : 樹德那邊以前是農地啊 所以路才這樣 06/26 13:45
推 cmshow : 梅花燈真的廢,但官員很愛 06/26 14:27
→ cmshow : 官員都坐車,梅花燈沒差,騎二輪就活該曬死熱死 06/26 15:17
推 olikm : 西卡大應該去從政 06/26 17:33
→ trec : 義永路應該直接開大路連接科工館覺民路的 06/26 18:25
→ bailan : 以前那段覺民路是大溝,只有旁邊小路,旁邊那些就 06/26 19:33
→ bailan : 像是鄉下小巷那種才會彎來彎去.... 06/26 19:34
推 ZeroArcher : 挺綠的最喜歡梅花燈了 06/26 20:45
推 linchiai : 我也覺得忠言路上沒直接對接神農路很可惜跟奇怪, 06/26 23:59
→ linchiai : 但二十多年前就這樣子了,不像是故意的 06/26 23:59
→ kenkuo1688 : 推西卡 06/27 17:55