其實之前有稍微在板上分享過裝潢文章, 再加上目前已經入住一年多了, 看到大家在這上面討論蠻熱鬧的,那我來稍微分享一下心得 https://i.imgur.com/THJURAW.jpeg
其實我當初也很掙扎要不要花這些錢在裝潢上, 但考慮到自己很在意住的舒不舒服這件事情, 還是妥協了,當然大家常吵的天花板我有做, 因為本身書房我自己堅持用滑門來省空間,所以當初客變時我把所有公共空間的天花板都 退掉了 https://i.imgur.com/rSIT84f.jpeg
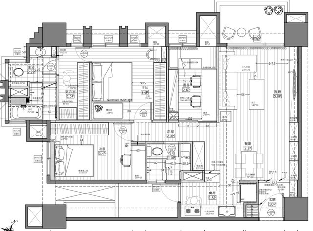
其實我覺得先仔細思考過到底你對裝潢的需求是什麼 ,再來決定要不要請設計師 以下是我考慮的點: 1.室內只有不到31坪,再加上我喜歡把所有的東西收納乾淨,對我來說系統櫃就是要在不 影響動線的情況下做滿。掃地機器人,吸塵器等小家電甚至有幾個 行李箱,都事先給好 尺寸,讓他們有自己專屬的空間。收納空間多的優點就是我很容易維持家裡在照片上的整 潔度,加上我衣服真的很多,主臥後面的更衣室最後是用吊掛的方式加斗櫃來增加收納量 https://i.imgur.com/lBqjiZc.jpeg
2.上面提到的天花板,因為已經決定要使用滑門,書房和公共空間的天花板勢必得重做, 而我既然已經花了錢,那我會想要有圓弧的元素把客廳的樑擋掉 https://i.imgur.com/LcVT91r.jpeg
3.玄關要有落塵區,想要類似清水模的材質方便清理又不怕水(因為全室木地板) 4.書房跟副主臥基本上留白,只幫我做了一個櫃子、單人加大尺寸的臥榻跟坎燈,因為房 間已經沒有很大了,再加上我希望留一點佈置的樂趣給自己 https://i.imgur.com/uim6JT2.jpeg
這邊桌子是180的升降桌,後來我又弄成雙螢幕,才不會顯得桌子太擠 https://i.imgur.com/cWvS29Q.jpeg
5.再來就是很多人嫌棄的浴缸,當初我把兩間浴室打通成一間,為的就是冬天可以泡澡, 對我來說一個禮拜兩次以上還蠻實用的 https://i.imgur.com/zfVwv8Y.jpeg
6.現代風想要搭配一點金屬跟大理石元素,但不想做的太誇張,所以設計師把這個要求加 在這裡 ,自己再挑個質感不錯的燈跟桌子 https://i.imgur.com/trakusp.jpeg
設計師給的意見我並沒有照單全收,都是來來回回討論好幾次,從顏色,材質,樣式以及 尺寸我都有自己想要的樣子,最後再參考設計師的意見搭配,要記住住的人是你自己。我 本身喜歡的顏色本來就是暖色&白色為主,所以搭配上並不困難。 https://i.imgur.com/M6Z6pCI.jpeg
https://i.imgur.com/HC9wFIQ.jpeg
https://i.imgur.com/jrqctpd.jpeg
https://i.imgur.com/ykU5HKR.jpeg
https://i.imgur.com/DmAQOPY.jpeg
https://i.imgur.com/d8kTpI1.jpeg
(電視櫃右邊的是b&o的無線音響,因為音質很好,加上顏色跟我的裝潢配色蠻搭的就入手 了) 最後是自己DIY 的陽台 https://i.imgur.com/ufg6Rtn.jpeg
老實說入住一年沒什麼後悔的地方,但住了大樓開始想著管理費一年也要五萬,將來有機 會也想試試看住透天有個小車庫來玩玩車也不錯 https://i.imgur.com/lcVWoPf.jpeg
總結:我認為有預算請設計師當然省了很多心力,可以很快的把你的需求統整出來再設計 ,而且我是沒把握可以靠軟裝就把家裡佈置的很好的人。我不會認為裝潢浪費錢,畢竟 居住的品質還是要有。我也不會認為沒裝潢就怎麼樣,畢竟每個人的價值觀不同,錢總是 可以有更好的運用。對我來說我就是想下班回家,開個音樂在自己的空間裡放鬆的人,所 以我願意裝潢。 (拜託先不要來信問設計師跟裝潢費用,我不想被誤會打廣告,單純分享心得而已) -- ※ 發信站: 批踢踢實業坊(pttbestweb.org.tw), 來自: 220.132.55.227 (臺灣) ※ 文章網址: https://pttbestweb.org.tw/home-sale/M.1730739976.A.E30
becometoo: 很美欸!! 裝潢錢值得~~11/05 01:20
coffeedemon: 覺得要價不斐XD 不過住得爽比較重要11/05 01:21
Hunghung727: 住的爽最重要+111/05 01:30
loloool: 花多少啊?11/05 01:31
mobinyu: 漂亮11/05 01:37
Vanvan: 很棒!室內設計和外面的景色都很棒!11/05 01:53
paul007: 讚11/05 01:56
lovewhite: 很漂亮 我也是完全不後悔裝潢 我房子買現成的家具根本11/05 01:59
lovewhite: 不可能達到現在的樣子 光是我剛好把衣櫥塞進房間的洞裡11/05 02:00
lovewhite: 現成的家具就不可能找到剛好的尺寸11/05 02:00
littmann: 讚讚 11/05 02:02
ckzzz: 住的爽最重要,一堆網路怪咖只會扯CP值 11/05 02:05
coffeedemon: 仔細看一下才發現PS5接電腦不接電視 11/05 02:06
ckzzz: 我只有做鞋櫃,有做一個雙開門,裡面藏吸塵器跟掃地機器人11/05 02:07
ckzzz: ,下面懸空讓機器人能進出,現成的根本做不到 11/05 02:07
DeathStarDS1: 喜歡施工人員但是很討厭室內設計師 11/05 02:13
LonyIce: 很棒 11/05 02:13
CHENXOX: 能舒服最重要 裝不裝潢不重要 窩看過有人裝潢後氣到根 11/05 02:16
CHENXOX: 設計師官司沒完沒了 11/05 02:16
luckysmallsu: 室內31坪很爽了我板橋新房室內才21坪哭哭 11/05 02:27
luckysmallsu: 你電視太小了這個面寬可以換100吋以上 11/05 02:28
nacy204327: 還是無法認同系統櫃設計 但沙發很美 11/05 02:51
Morphee: 現在要裝潢可以啦,前幾年的話有點可惜,哪時候花200買一 11/05 03:11
Morphee: 間竹北1000可以兩年內翻倍,花100買一間南科或高雄可以 11/05 03:11
Morphee: 賺500。 11/05 03:11
Morphee: 尤其是2020-2021,哪時候應該all in,到現在不要說裝潢了 11/05 03:12
Morphee: ,直接可以買台北蛋黃新房了。 11/05 03:12
coburn: 哇 根本雜誌才會出現的房子 恭喜恭喜 11/05 03:16
lucky466: 很漂亮,但這種裝潢我兒子可能1年後就破壞的剩8成了 11/05 03:51
lucky466: 恭喜 11/05 03:52
ShotOnWall: 室內31坪管理費一年才6萬 有夠便宜 11/05 05:13
mini178: 讚讚的 11/05 05:31
quiet93: 沒小孩想多漂亮都行XD 11/05 06:17
kusoyoda: 請問冰箱擺那跟水槽動線會卡嗎 11/05 06:24
www22550: 好奇沙發哪裡買的 11/05 06:25
PrivateRyan: 48改鏈條給推 11/05 06:51
Taiwanwolf: 錢只是變成自己想要的樣子 11/05 07:00
LinuxKernel: 讚,期待看沒裝潢的人分享 11/05 07:21
WenliYang: 重點得有錢…… 11/05 07:31
starcat22310: 有錢可以啦 而且還有打算換屋的餘裕 爽就好 不然光 11/05 07:35
starcat22310: 是吸塵器跟機器人時時在更新規格 專屬空間就不可能 11/05 07:35
starcat22310: 撐十幾年了 11/05 07:35
stefanie7515: 很美 11/05 07:38
iclaire: 期待看沒裝潢的人分享+1 11/05 07:41
cphe: 說掃地機器人會變的不是因噎廢食嗎 等變了再說吧 11/05 07:50
cphe: 要不可以拍看看現在你的掃地機器人怎麼擺 11/05 07:52
benny1990615: 不裝潢很醜,但沒錢只能妥協 11/05 07:52
zebra79979: 還是想參考一下花費,可以麻煩透漏一下,讓我評估一番 11/05 07:52
kenkuo1688: 室內31很大... 11/05 07:53
aq2272353712: 真的很爽 11/05 07:58
z5411: 這看起來完全沒室內31的感覺 11/05 07:58
vKHip: 這室內31? 看起來怎麼只有21 11/05 08:05
tenorlan: 比較好奇花多少 11/05 08:08
Introversion: 好讚 11/05 08:13
askey: 這兒一堆投客,自住當然考量舒服順眼 11/05 08:14
mayu1230: 只是錢的問題而已,一定要裝潢的。 11/05 08:19
dennistao: 那個機車,你的名字是不是叫做克勞德? 11/05 08:20
poizon0311: 再給我選10次也是會裝潢,下班一進門就是舒服。我 11/05 08:23
poizon0311: 也有兩個小孩,牆壁畫亂定期重新油漆就好,一小時 11/05 08:23
poizon0311: 就能解決的事,系統櫃反而不怕亂畫。有找設計師並 11/05 08:23
poizon0311: 投入時間一起討論基本上都不會醜也很耐看。 11/05 08:23
klwei: 竹北富宇? 11/05 08:24
benny1990615: 說不用裝潢99%酸葡萄而已啦,不用認真 11/05 08:31
chene847: 好有質感 11/05 08:38
ckzzz: https://i.imgur.com/eKPgW18.jpeg 11/05 08:38
ckzzz: 除非掃地機器人變超級大台,不然不可能裝不下吧XD 11/05 08:39
dick929: 其實原po的圖文也只是證明裝潢就是屋主自爽用 11/05 08:39
dick929: 前提是“有錢讓自己爽” 11/05 08:40
chpses: 我看到磨豆機才有印象推過你家XDDDDD 11/05 08:41
ckzzz: 另外nacy204327你一直說無法認同系統櫃設計,要不要讓大家 11/05 08:41
ckzzz: 看看你家木工的設計,給大家聞香一下 11/05 08:41
dick929: 最早的原文那篇也說了~不裝潢只是沒錢 11/05 08:43
dick929: 所以裝潢派也沒什麼好“自我感覺良好”,因為不過就是砸 11/05 08:45
ls33322: 小孩沒出來前 我也是這麼愛乾淨整齊 11/05 08:45
l98: 本來就是錢的問題呀 11/05 08:45
dick929: 錢而已 11/05 08:46
l98: 其實之前有稍微在板上分享過裝潢文章,但你在板上有留存這篇 11/05 08:51
l98: 文章,請問是分享在哪裡?感謝 11/05 08:51
tfct: 花多少錢不講 爲何? 11/05 08:51
euruing: 有錢的話誰不想裝潢呢………. 11/05 08:52
l98: 應該是打廣告的啦,備份網站都沒看到他在本版其他發文 11/05 08:53
LA24: 室內只有31坪 11/05 09:01
Tosca: 這種電視櫃就沒辦法放落地喇叭了=.= 11/05 09:02
Tosca: 室內31坪很夠住了啦 又不是生三個 11/05 09:02
Tosca: 只是室內31坪我會想把一個房間打掉讓客廳變大 11/05 09:03
Tosca: 上面一個說有錢了話誰不想裝潢 沒有喔 大錯特錯!! 11/05 09:04
Tosca: 有錢了話直接買高檔家具 遠比裝潢實用太多了 11/05 09:05
Tosca: 好比貴一點的沙發那坐起來質感是真的不一樣 11/05 09:05
Tosca: 你與其花幾十萬裝潢不如花幾十萬買沙發 11/05 09:05
petitebabe: 這色調很美! 11/05 09:07
LAURANCE: 多少錢啊~~ 11/05 09:09
petitebabe: 不用系統櫃/木工 那些雜物要收去哪裡? 11/05 09:09
ckzzz: 有錢人是高檔裝潢+高檔家具,而不是只有二選一 11/05 09:09
tfct: 買好沙發可能不如好好做地板 用那種超耐磨真的很廉價感 11/05 09:10
pz5202: 推81F 房板要淪陷了 11/05 09:12
petitebabe: 三房這樣室內超舒服 11/05 09:14
petitebabe: 看一下原PO其他板的文章 我覺得不是業 11/05 09:16
LAURANCE: 可能需要400W(錢錢的味道~~)( 11/05 09:18
petitebabe: 我覺得應該250~300 11/05 09:19
LonyIce: 有錢誰只選一個,然後有人一直跳針,自己又不發不裝潢或 11/05 09:20
LonyIce: 全軟裝的家到底是怎樣的,這樣不就證實只會出張嘴… 11/05 09:20
physicsdk: 蠻讚的 11/05 09:20
canis831025: 真的,住的爽最重要 11/05 09:21
canis831025: 省錢根本買不到自己心目中想要的樣子 11/05 09:21
petitebabe: 高檔裝潢/高檔家俱 不衝突 有錢人全部都要 11/05 09:21
minikai: 水喔,你這錢花的很值得 11/05 09:22
LonyIce: 這個含衛浴重做不可能太低,有人價格低估了,除非是南部 11/05 09:23
LonyIce: 才有這價格 11/05 09:23
petitebabe: 看其他文章 應該是在台中 11/05 09:23
ckzzz: 網路很多出張嘴的,我也想看零裝潢的照片 11/05 09:25
petitebabe: 如果他的建商幫他客變衛浴就省很多 11/05 09:27
metallolly: 陽台很美!!! 11/05 09:31
LonyIce: 查到了 他舊文章寫純硬裝不含窗簾、家電、家具、燈具, 11/05 09:32
LonyIce: 150萬,比我想像的便宜很多 11/05 09:32
crazywill: 是該拆一間 客廳有點窄 不像31p 11/05 09:34
petitebabe: 150好便宜喔 11/05 09:35
shejoyshe: 兩衞改一衞有點蠢 11/05 09:40
jerrylin: 你有錢想裝潢就裝潢 11/05 09:41
petitebabe: 罰樓上重看平面圖 他是三衛改兩衛 11/05 09:41
dakkk: 才150怎可能 11/05 09:47
planta: 感覺屋主很品味!!!我想要看陽台的頂天立地架!! 11/05 09:58
realmd: 錢本來就是花要在自已開心的地方 11/05 10:06
SHARK0713: 這種就系統櫃裝好裝滿的那種,設計師及系統櫃廠商的最 11/05 10:12
SHARK0713: 愛 11/05 10:12
ckzzz: 廠商跟設計師最愛這種又如何?屋主爽就好了,扯一堆白癡話 11/05 10:14
ckzzz: 幹嘛 11/05 10:14
zaqimon: 台灣裝潢節目感覺都很無聊 日本裝潢節目有趣多了 11/05 10:18
Taiwanwolf: 裝潢主要用來安太座 11/05 10:18
zaqimon: 因為台灣大多是平面一層樓 再怎麼裝潢就是那樣而已 11/05 10:19
zaqimon: 日本裝潢節目通常都是獨棟 有很多可以設計的地方 11/05 10:19
zaqimon: 不過再怎麼裝潢看一段時間後就無感了 然後就會越來越舊 11/05 10:21
zaqimon: 接縫處可能開始出現裂痕 燈壞了也懶得修反正也很少開 ... 11/05 10:21
zaqimon: 不過台灣裝潢節目上的每位屋主怎麼剛好都很有品味的樣子 11/05 10:24
zaqimon: 例如每位屋主都常出國旅遊帶回很多紀念品需要展示之類的 11/05 10:24
zaqimon: 日本裝潢節目比較不會強調美味屋主都很有品味 11/05 10:24
floatfaith: 推推 11/05 10:41
l98: 老舊透天年輕人又看不起(aka 現金不夠),不然是真的很多透 11/05 10:42
bronx0807: 就閒錢太多 11/05 10:42
l98: 天可以買 11/05 10:42
LonyIce: 我也希望有人罵我錢太多 11/05 10:48
haopig: 那些嘴裝潢的人家裡都是奇醜無比,也不敢分享的,最可憐 11/05 10:53
haopig: 的嘴砲 11/05 10:53