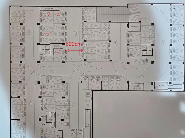
車位只提供圖面4個位置可選擇 除了圖面27號為230*550外 其餘均為標準尺寸250*550 還請各位大神協助 謝謝 其中版友建議的31,雨水回收區距牆壁約162.5cm 所以是很好倒車入庫的? 31考量的點是倒車入庫的難度 36則是駕駛座不好下車的問題 https://i.imgur.com/6IfZHHN.jpeg
-- ※ 發信站: 批踢踢實業坊(pttbestweb.org.tw), 來自: 111.240.72.28 (臺灣) ※ 文章網址: https://pttbestweb.org.tw/home-sale/M.1730638244.A.50B
kenkung: 我會選36,好停離電梯近。 11/03 20:54
blessman520: 請問36不會卡到駕駛下車嗎? 只擔心這個...謝謝 11/03 20:55
veter: 勾的這四個也只有36可以,靠牆的八成要倒車進去停,27又在 11/03 20:57
veter: 中間直接淘汰 11/03 20:57
blessman520: 了解 感謝各位版友建議~~ 11/03 20:58
elven: 36 11/03 21:00
bustinjieber: 31還行,不排斥倒車入庫 11/03 21:01
bustinjieber: 駕駛座至少可以開到底, 11/03 21:01
bustinjieber: 離電梯較遠的問題,切西瓜就好 11/03 21:01
lucky466: 選31吧!36駕駛下車會卡死 11/03 21:05
alpesor: 31 30遠遠就要倒車進去,先刪掉,我比較喜歡27,如果真 11/03 21:05
alpesor: 的照圖施工,36駕駛座下車開門是個問題,如果37又剛好車 11/03 21:05
alpesor: 型較大,或他只要靠左停一點,你左右都很難下車 11/03 21:05
kenkung: 其他的只有31可能不會卡到駕駛下車,但是距離電梯真的遠 11/03 21:06
kenkung: ,而且應該又要倒車入庫,36要靠之後跟隔壁車位的鄰居協 11/03 21:06
kenkung: 調。 11/03 21:06
elven: 補充,雖然我推薦36好停車,但我自己選的話是31,停車對我 11/03 21:06
elven: 來說不是問題,31旁邊的開門空間很方便。 11/03 21:06
lucky466: 31很好倒車的,相信我 11/03 21:07
MayKA: 31如果附近其他車比你晚回來,也很好轉彎停進去 11/03 21:11
elven: 162.5cm-->幾秒鐘就倒好車了 11/03 21:19
airmoto: 31 11/03 21:42
drimp: 都很爛 硬要選就36 11/03 21:55
Schwarzer: 車道多寬? 11/03 22:48
segga: 36 車子微微打斜應該不用怕難下車 11/03 23:42
blessman520: 兩個對向車格外框間距(車道)600cm 11/04 00:06
KGSox: 30貼著牆停最好 尤其當你隔壁出現toyota時 11/04 01:23
KGSox: 圖紙有照尺寸畫的話 30也不用倒車進去車道就能停了 上面還 11/04 01:25
KGSox: 有空間給你直接開進去再倒車入車位 11/04 01:25
KGSox: 27小車位直接刪掉 31跟36你貼著牆停都不好下車也刪掉 11/04 01:27
rick6304: 36 27差不多爛 11/04 01:58
slluu2: 36 11/04 09:42
DontPLZ: 我選31 11/04 10:25
zark07222: 選31吧,駕駛能輕鬆下車這很重要好嗎!至於電梯其實一 11/04 14:32
zark07222: 般人會從30那邊穿過去走去電梯,根本不遠…. 11/04 14:32