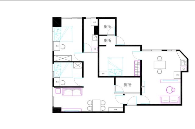
感謝板上提供的好點子,目前房子的設計已經定稿。 https://i.imgur.com/Rr0UCsw.jpeg
分成左右兩間,左邊那間採光比較好,右邊採光差一點。 目前想到兩種風格,淺色(無印良品風)深色(ikea風)。我自己覺得兩間不同風格蠻有趣 的,但想說空間不算很大,深色風格會不會比較壓迫?想請教各位包租公/包租婆的經驗,? 建議裝修成什麼風格比較好出租呢? 淺色示意圖 https://i.imgur.com/Sp1MgUn.jpeg
---- Sent from BePTT -- https://i.imgur.com/xPjzebU.jpeg
https://i.imgur.com/m3FiDjB.jpeg
深色示意圖 https://i.imgur.com/yDfWTcn.jpeg
https://i.imgur.com/omNadJD.jpeg
https://i.imgur.com/lXTJi2A.jpeg
https://i.imgur.com/nGGCZku.jpeg
※ 發信站: 批踢踢實業坊(pttbestweb.org.tw), 來自: 36.229.85.95 (臺灣) ※ 文章網址: https://pttbestweb.org.tw/home-sale/M.1729878755.A.03D
fireheart988: 淺 但你要給租客這麼好ㄛ10/26 02:37
fireheart988: 喔我想起來了 西門站的那間10/26 02:38
fireheart988: 北部的話我還是覺得偏日系風格比較多妹子喜歡10/26 02:39
fireheart988: 妹子比較願意多花點錢租or叫男友出錢合租10/26 02:40
ragtime: 都選淺色風格。 地板可以用稍深的木色,但牆壁千萬別用深 10/26 08:33
ragtime: 色。 10/26 08:33
alpesor: 不曉得你室內幾坪,坪數正常的話,深色比較有質感,反之 10/26 08:33
alpesor: 淺色能帶來空間空曠的錯覺,但如果你是要租屋,還是建議 10/26 08:33
alpesor: 別花錢在裝潢上 10/26 08:33
overhead: 建議淺色喔 實用又流行 深色比較不耐看容易過氣 10/26 08:44
iamfatfat: 深色容易過時? 10/26 08:56
PrivateRyan: 輕奢風參考一下 10/26 09:25
cphe: 要出租簡單裝潢買軟裝就好了,想租女生的話網路找一些文青 10/26 09:53
cphe: 假掰中看不中用的擺設,最容易吸引 10/26 09:53
lajji: 右邊那間 大家具根本就進不去吧 10/26 10:04
prionailurus: 出租的話 覺得淺色應該比較好出租 10/26 10:04
minging: 右邊那間入口超級狹隘……不要說大家具,感覺去趟好市多 10/26 10:21
minging: 就無法拿進門了 10/26 10:21
cphe: 右邊那間連要關大門開自己房間門都很困難吧XDD 10/26 10:39
dai26: 房子這麼小確定要深色? 10/26 13:30
senju: 先試看自己在全淺色環境會不會睡前無法靜心沉穩 10/27 09:21