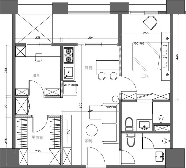
各位前輩好 最近面臨客變階段,設計師有提供兩個版本的方案,因各有優缺,很難抉擇還請各位前輩指 教,謝謝 建案室內17.5坪 居住人數1 偶爾會有朋友來訪 方案A https://i.imgur.com/U8agseV.jpeg
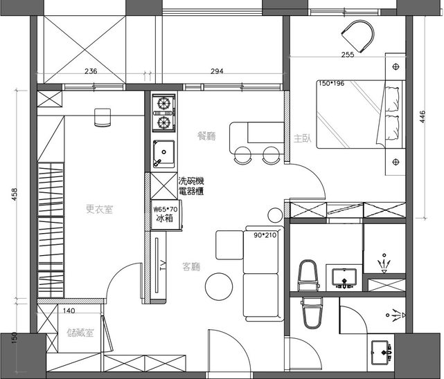
主要有兩個大房間,一間作為臥室,一間是書房+更衣室,另設有獨立儲藏室 方案B https://i.imgur.com/8dymi7M.jpeg
把書房跟更衣室分兩間,更衣室後方的櫃體作為儲藏空間使用,客人如果留宿可以在書房打 地鋪 感謝大家 ---- Sent from BePTT on my iPhone16,1 -- ※ 發信站: 批踢踢實業坊(pttbestweb.org.tw), 來自: 223.139.47.75 (臺灣) ※ 文章網址: https://pttbestweb.org.tw/home-sale/M.1729674623.A.DFA
fo11ow: 我會選二 因為我更衣室不需要那麼大10/23 17:12
kkkkkkkelly: 補充 方案B的電器櫃只能放中島下10/23 17:13
zero781218: 210/23 17:15
dans: 喜歡A的客廳、B的書房更衣室。但我覺得拿掉餐桌應該比較好10/23 17:16
darkskyaa: 都不好 硬要選的話會選A B的電視是歪的10/23 17:17
fo11ow: 我個人可能會傾向把中島改成靠主臥那面牆 做一個櫃子 飯廳10/23 17:17
fo11ow: 的桌子不要固定成中島 這樣廚房跟客廳的空間不會被切割 靈10/23 17:17
fo11ow: 活性更大 要做瑜珈或是打麻將都有空間10/23 17:17
fo11ow: 小坪數最忌諱的就是再度切割僅有的開放空間10/23 17:19
icexice: b啊,a的客廳離廚房太近,公領域的空間感很差10/23 17:19
SeaOfLove: 一個人住, 餐桌是放雜物嗎..10/23 17:21
icexice: 我會選b,但把中島轉90度,中島除了電器櫃、餐桌功能外10/23 17:22
icexice: ,也是很好用的備餐檯,現在的位置跟方向離爐台太遠,不10/23 17:22
icexice: 好備餐10/23 17:22
dans: 沒料理區耶,妳們客變把料理區客掉?10/23 17:22
dans: 沒這樣搞的吧10/23 17:22
fo11ow: 這設計師是誰可以透漏一下嗎?10/23 17:24
dans: Ikea有一種砧板推車,妳考慮看看是否能取代中島10/23 17:35
dans: 小坪數兩人以內,在客廳吃飯就好,中島那邊能擺電器櫃冰箱10/23 17:36
dans: 留出來空間挪一下,妳的電視或許可以不用這麼斜10/23 17:37
dans: 如果不想再大動干戈,取捨之下就方案B吧,犧牲一下電視10/23 17:39
chanel1259: 來找你的朋友不一起睡嗎10/23 17:40
minirr: 女生選A,看那更衣間容量跟玄關鞋櫃感覺可以安心置裝了10/23 17:49
coonash: 我會選b然後不做書房,全部都更衣室10/23 17:54
coonash: 不用考慮客房,使用率很低10/23 17:54
etfive217: A吧 B為了隔兩間 走道好浪費空間10/23 17:56
CC66chen: A, B的空間太過零碎10/23 18:02
celine007: 選A,朋友來訪也可在睡書房,10/23 18:02
celine007: B的空間較浪費10/23 18:02
LonyIce: 都不愛 設計師不專業10/23 18:22
hortl233: 選B10/23 18:26
LonyIce: 把 B 書房的門做在電視牆同一平面上,做隱藏門,空間利10/23 18:26
LonyIce: 用效率更好,空間看起來也大10/23 18:26
uiop5566183: B方案 然後打掉更衣室10/23 18:28
uiop5566183: 客廳會大一些比較不會擁擠10/23 18:28
hortl233: 照圖面上的尺寸標註,就算隔2間每間都大概1.8坪,夠了10/23 18:28
celine007: 能看來訪者的睡相不香嗎?10/23 18:29
celine007: 以後若真有隔間的需求再加做就好!10/23 18:29
hortl233: B沒有空間浪費的問題,因為那個走道A一樣有10/23 18:30
hortl233: 而且B….1.8+1.7+3.4,這已經是標準小3房吧10/23 18:33
nala0314: 一個人住應該不需要2衛吧10/23 18:36
hibiscus520: B電視太卡,沙發再往下卡進門+廁所出來水滴沙發10/23 18:38
nutihe: 那是半島不是中島10/23 19:26
babyMclaren: 210/23 19:31
over999: 郵箱已刪除XD10/23 20:01
akita690: 絕對是A,B書房關門太小,很壓迫。10/23 20:04
jugularnotch: A吧,電器櫃改成料理台,然後電器放餐桌那個位置。10/23 21:22
jugularnotch: 更衣室也可以兼當書房10/23 21:22
leiouter: 請問電視能放幾寸大小10/23 22:07
NSYSUEE: A比較好吧,B你的房子都很小了,還多出一個沒用的走道空10/23 23:59
NSYSUEE: 間隔離兩個小房間,很怪阿,這兩個小房間,收納都不好做10/23 23:59
NSYSUEE: B的問題是2個客房都太小了,你不管裝什麼收納的東西,都10/24 00:02
NSYSUEE: 會顯得很壓迫10/24 00:02
NSYSUEE: 把兩間小的客房合併成一個,讓他可以同時擁有收納+書房+10/24 00:03
NSYSUEE: 一張單人床的空間,未來可以舖薄床墊給客人臨時睡覺用也10/24 00:03
NSYSUEE: 顯得比較不壓迫,你當書房也不會壓迫10/24 00:03
una283: 當然是A已經夠小了還要再切什麼10/24 05:31
julybettygon: 選A B一看就很難住10/24 06:56
Ironcc: A10/24 12:13
tayatiffany: 我會選B 但是房間不再分兩間 用tv同一面牆做隱藏門 10/24 13:48
kagaya: A......空間小不要再浪費走道 10/24 15:24